Currency
9067590195
Pune, Maharashtra, India
ajit@encomax.com

ANP Universe

Balewadi

Amenities

  • Amphitheater
  • Amphitheatre
  • Barbeque Pit
  • Childrens Play Area
  • Common Play Area
  • Community Farming
  • Crèche
  • Indoor Badminton Court
  • Infinity Edge Swimming Pool
  • Jacuzzi
  • Kids playground
  • Kids Pool
  • Miniature Golf
  • Multipurpose Court
  • Outdoor Gym
  • Party Lawn
  • Pets Park
  • Pool Deck
  • Senior Citizen Area
  • Star Gazing Deck
  • Sunken Bar
  • Yoga & Meditation Area

Details

ANP Universe, Balewadi – 3 BHK , 4 BHK Balewadi

Welcome to ANP Universe, a world where elegance, innovation, and modern comfort converge to redefine luxury living in Pune. Situated in the heart of Balewadi High Street, this ultra-luxurious residential development by ANP Corp stands as a symbol of sophistication and architectural excellence. Designed for those who appreciate the finer things in life, ANP Universe offers an experience that goes beyond a home — it’s a complete lifestyle ecosystem.

A Landmark of Grandeur in Balewadi

Balewadi has fast emerged as one of Pune’s most desirable and upscale residential destinations — a perfect blend of cosmopolitan lifestyle, connectivity, and culture. From its proximity to Baner, Hinjewadi, and Aundh to its thriving social and commercial infrastructure, Balewadi represents the best of Pune’s urban evolution.

Rising proudly over this dynamic neighbourhood, ANP Universe spans an impressive 15 acres of mixed development, featuring five premium residential towers that encapsulate the brand’s philosophy — crafted for those who dream without limits. Every tower stands tall as a reflection of ANP Corp’s legacy in delivering iconic projects that combine architectural finesse with thoughtful functionality.

A Masterpiece in Design and Detailing

Step into a universe of curated luxury, where every square foot is a testament to exceptional craftsmanship and intelligent design. Each residential tower is thoughtfully planned with only four apartments per floor, ensuring privacy and exclusivity for its residents. Four high-speed elevators per tower offer swift, seamless access to your residence — a perfect balance of convenience and luxury.

The project’s 2.5-acre central podium forms the heart of this magnificent community — a lush, beautifully landscaped space that connects residents to a vibrant social and recreational hub.

Luxury Residences That Inspire

ANP Universe offers spacious 3 BHK and 4 BHK ultra-luxury apartments, each designed with precision and elegance. Expansive living areas, wide decks, large windows


ANP Universe Configuration & Pricing

3 BHK


1279 sq.ft

₹1.95 Cr* AI

4 BHK


2012 sq.ft

₹3.20 Cr* AI

From Italian marble flooring and designer fittings to smart home features and modular kitchens, these residences redefine contemporary luxury while offering functionality for modern urban families.

Amenities That Go Beyond Imagination

At ANP Universe, luxury extends beyond your home into every aspect of community living. The project offers an enviable range of 25+ world-class amenities, curated to meet every lifestyle aspiration.

Leisure & Recreation

  • Infinity Edge Swimming Pool with a stunning city view

  • Splash Pool for Kids

  • Sunken Bar with Pool Deck for a resort-style experience

  • Miniature Golf Course for your weekend unwind

  • Amphitheatre for open-air performances and events

  • Mini Theater for private screenings

  • Party Lawn for celebrations under the stars

Fitness & Wellness

  • Jogging Tracks of 250M and 500M amidst landscaped greens

  • Multi-Sport Court for tennis, basketball, and futsal

  • Double Height Badminton Court

  • Fully Equipped Gymnasium

  • Yoga and Meditation Decks

Kids & Family Spaces

  • Dedicated Kids’ Play Zones with innovative installations

  • Learning and Activity Areas for children

  • Community Lounge & Indoor Games Room for shared experiences

Whether you seek solitude or social connection, relaxation or recreation — ANP Universe offers a universe of choices right at your doorstep.

An Address of Unmatched Connectivity

Strategically located at Sr. No. 49/50, Balewadi High Street, ANP Universe enjoys unbeatable access to Pune’s prime landmarks:

  • 2 min from Balewadi High Street

  • 5 min from Baner Road

  • 10 min from Hinjewadi IT Park

  • 15 min from Pune University

  • 20 min from Pune Station

  • 30 min from Pune International Airport

From fine dining and shopping to educational institutions, healthcare, and entertainment — everything you need is just a short drive away.

A Developer You Can Trust – ANP Corp

With a legacy of over two decades and a portfolio that includes some of Pune’s most acclaimed developments, ANP Corp stands as a name synonymous with trust, quality, and innovation. Each project by ANP Corp, including ANP Atlantis, ANP Memento, ANP Retreat, and now ANP Universe, has set new benchmarks in premium living.

Their attention to detail, uncompromising quality standards, and customer-first philosophy have earned them the reputation of being one of Pune’s best-known and most trusted real estate developers.

A Universe Designed Around You

From the moment you enter ANP Universe, you’re greeted by an ambiance of serenity, grandeur, and exclusivity. The meticulously planned spaces, landscaped gardens, and curated amenities together form a lifestyle that few can match. It’s not just about owning an apartment; it’s about belonging to a community that values refinement, comfort, and connection.

Interested in This Property?

If you would like more details, floorplans, pricing, site visits, or want to understand whether this property fits your lifestyle and budget, our team is here to help.

Send us your details and we will arrange a quick call or WhatsApp briefing with an expert consultant.

No obligations, no spam — only genuine assistance from Encomax.

Send Message

    Video

    FLOORPLANS

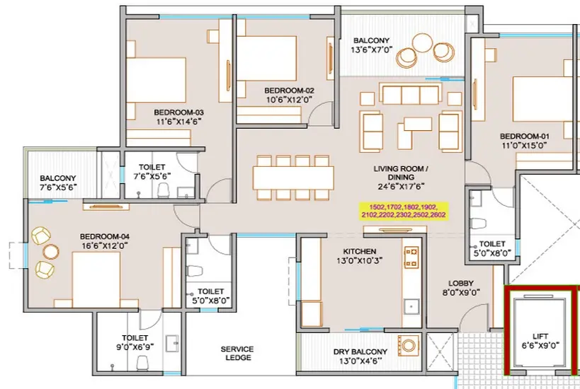
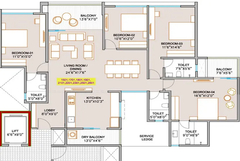
    3 BHK Type 1

    3 BHK Type 2

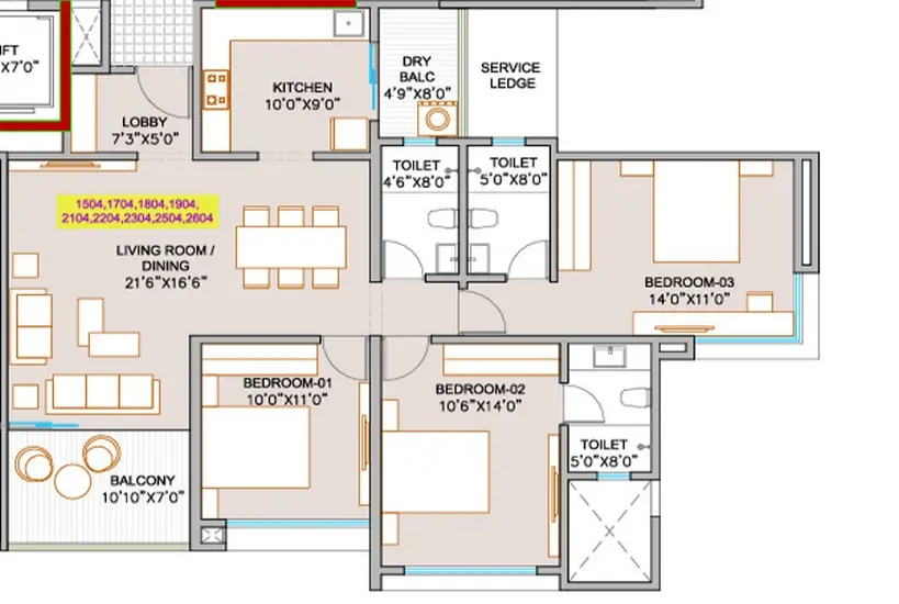
    4 BHK Type 1

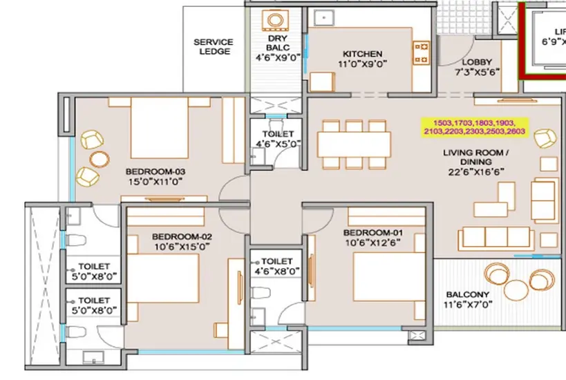
    4 BHK Type 2

    • ID: 23670
    • Views: 128

    Location

    Whats Nearby


    Epicentre of Exclusivity

    This futuristic location of Balewadi, close to Baner, is perfect for people who want to witness growth.
    The engulfed IT hub and the growing business land are easily connected to Pune – Mumbai Highway,
    Hinjewadi IT Park, Aundh IT Park, Hospitals, Schools, and Colleges.

    Healthcare

    • Jupiter Hospital – 5 min
    • LifePoint Multispeciality Hospital – 7 min
    • Surya Hospital – 10 min

    Education

    • Rabindranath Tagore School of Excellence – 5 min
    • C M International School – 5 min
    • Lexicon School Balewadi – 10 min
    • Tree House High School – 10 min

    Daily Needs

    • K K Bazaar – 5 min
    • Wellness Forever – 5 min
    • D-mart, Baner – 10 min
    • Tree House High School – 10 min

    Entertainment

    • Westend Mall – 10 min
    • Spot 18 – 15 min
    • The Pavilion – 20 min
    • Xion Mall – 20 min